P. Sacco Public Gymnasium
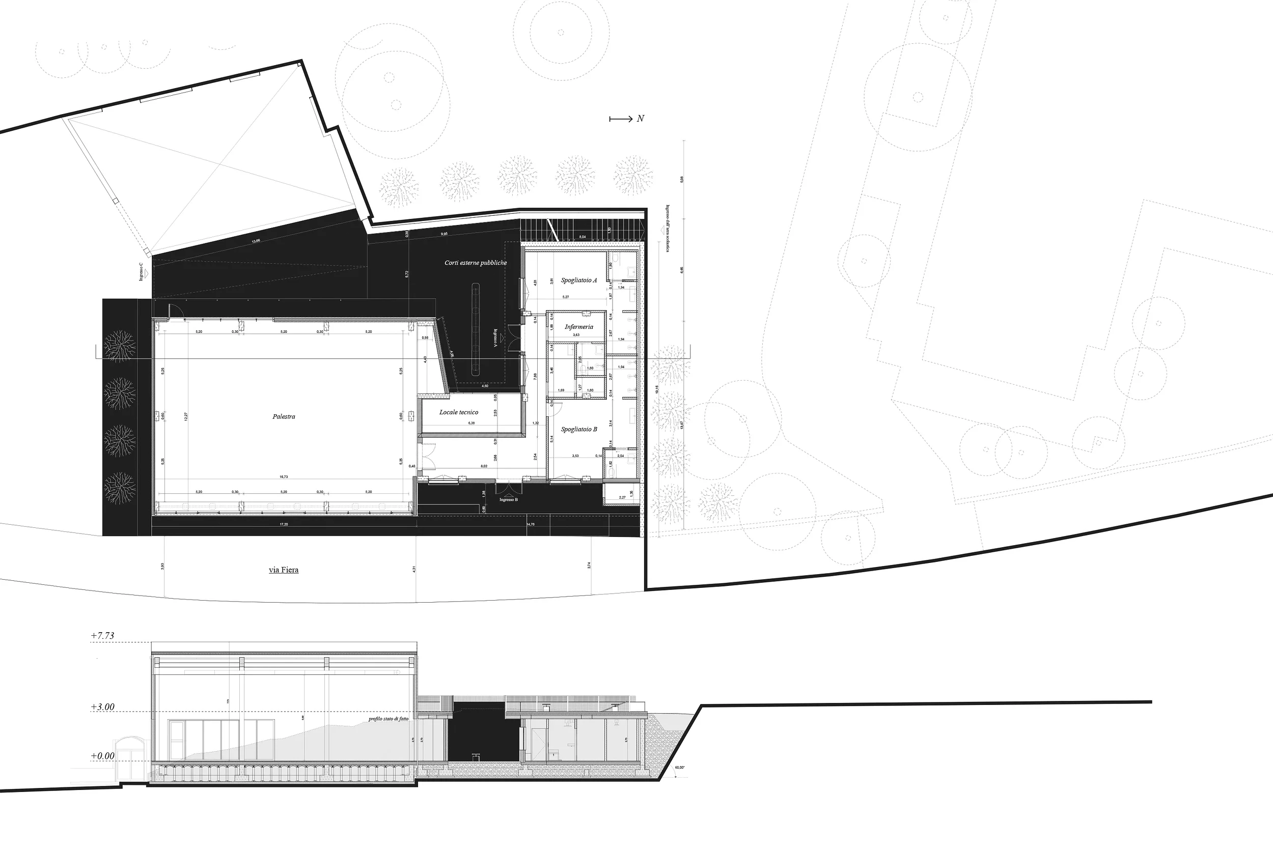
Following the demolition of the Rionero school, the Administration commissioned a new gymnasium adjacent to the temporary school facilities. The project investigates architecture as an amplifier of public space and as a point of convergence between architectural, urban, and landscape systems. Rather than an autonomous object, the intervention proposes the regeneration of a degraded fragment of the urban park. The gymnasium operates as a super-urban device. Positioned along the park edge to construct a new spatial boundary, it enables access from street level, allowing use beyond school hours. A carved mass organizes stairs, courtyards, and terraces, generating new crossings and public spaces and extending the park’s activity into the building and onto its surfaces.
-
Public facility. New school gymnasium (PNRR project).
-
Client
Municipality of Rionero in VultureYear
2023-ongoingSite
Rionero in Vulture (PZ), ItalyContractor
ING.RAM S.R.L.Status
Work in progress -
Architectural desing
Schirò Cutillo